Follow the buildout and opening journey
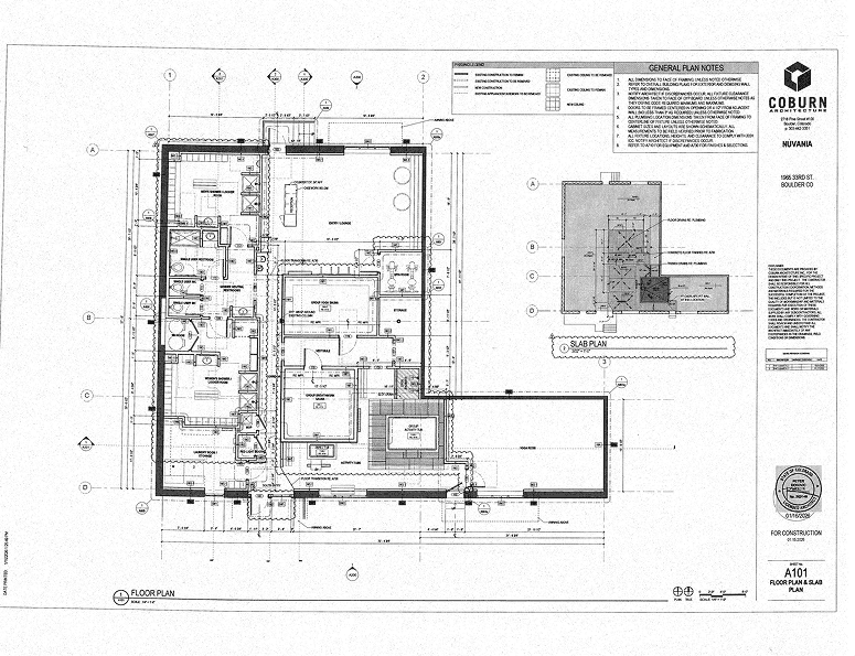
Feb 26, 2026 – we received our building permit (!) and are excited to bring this project to life with our architect, Coburn Development, and construction partners, Parallel Construction


What We’ll Share Here
Buildout progress
Equipment arrivals
Opening timeline
Community announcements
5/4/2026 - CONSTRUCTION STARTED! Targeting October 1 for a hard launch opening
Latest News
Get occasional updates about construction progress, opening dates, and early access opportunities.
New to Nuvania?

